Vom Schmutzwasser zur Lebensader
Großdimensionierte unterirdische Kanäle auf rund 20 Kilometern halten die Berne und die Nebengewässer seit Kurzem schmutzwasserfrei. Das Großprojekt ist Teil der Emscher-Renaturierung und trägt dazu bei, dass das Ruhrgebiet nicht nur ökologisch, sondern auch an Lebensqualität gewinnt.

Es war eine Baumaßnahme besonderen Ausmaßes: Die ökologische Verbesserung der Emscher und ihrer Nebengewässer, die mithilfe der Verlegung großvolumiger Kanalbauwerke in den Talauen von den kommunalen Abwässern befreit wurden. Die Emscher ist ein über 83 Kilometer langer Nebenfluss des Rheins, der durch das Ruhrgebiet fließt. Bis Mitte des 20. Jahrhunderts galt die Emscher als der schmutzigste Fluss Deutschlands, da bereits im 19. Jahrhundert zunehmend Abwasser aus Bergbau und Industrie sowie alle häuslichen Abwässer in den Fluss geleitet wurden.
Seit Anfang 2022 ist die Emscher abwasserfrei. In einem jahrzehntelangen Prozess wurde aus der ehemals „stinkenden Köttelbecke“ eine neue Flusslandschaft mit blauem Wasser und grünen Ufern geschaffen, die Flora und Fauna neuen Raum eröffnet. Ein zentrales Element für die erfolgreiche Renaturierung war der Einbau des neuen 51 km langen Abwasserkanals Emscher (AKE), der nun das gesamte Abwasser unterirdisch zu den zwei großen Kläranlagen in Bottrop und Dinslaken leitet.

Die Emschergenossenschaft, zu deren Aufgaben die Unterhaltung der Emscher, die Abwasserentsorgung und -reinigung sowie der Hochwasserschutz gehören, investierte für den Umbau des Berne-Systems rund 130 Millionen Euro. Dabei hatte sie auch wichtige Aspekte wie die Schaffung eines Gleichgewichts der unterschiedlichen Nutzungsansprüche von Mensch und Natur im Auge.

Um die kommunalen Abwässer aufzunehmen und nicht mehr in die Berne und die Nebengewässer zu leiten, wurde auf einer Strecke von rund 20 Kilometern eine neue unterirdische Kanaltrasse verlegt. Die Kanalsohlen des Teilgebietes liegen in Tiefen zwischen ca. 6 und 13 Meter unter dem Grundwasserspiegel. Die Sohlgefälle der Kanäle des Hauptkanals betragen durchschnittlich ca. 3%. Im Verlauf der Kanaltrassen des Hauptsammlers wurden Stahlbetonrohre mit Durchmessern zwischen DN 2000 bis DN 3800 verlegt. Für die Anschlusskanäle kamen Rohre mit einem Durchmesser zwischen DN 300 und DN 3000 zum Einsatz.
Rohrpost abonnieren!
Wir graben für Sie nach Neuigkeiten. Die Ergebnisse gibt es bei uns im Newsletter.
Jetzt anmelden!


Einer der letzten Streckenabschnitte des umfangreichen Projekts befand sich in Essen am Sulterkamp, wo der Borbecker Mühlenbach in die Berne mündet. Für diesen Teilabschnitt „Abwasserkanal Berne mit Bau eines Stauraumkanals mit unten liegender Entwässerung (SKU E) Sulterkamp“ lieferte das Unternehmen Berding Beton 3.500 Meter Stahlbeton-Vortriebsrohre mit Durchmessern von DN 400 bis DN 3800. Allein das Gesamtgewicht der Großrohre von 31.000 Tonnen stellte hohe Ansprüche an die Logistik. So mussten alle Transporte zur Baustelle aufgrund der Überbreite für die entsprechenden Routen genehmigt werden und konnten nur nachts stattfinden. Maximal vier bis sechs Rohre wurden pro Nacht angeliefert, wobei zusätzlich ein Begleitfahrzeug zur Absicherung von Kreuzungen, Einmündungen, Auffahrten oder ähnlichen Gefahrenquellen während des Transportes notwendig war. Dank einer engen Abstimmung zwischen dem Hersteller Berding Beton und den Bauausführenden wurde eine reibungslose Belieferung der Baustelle sichergestellt.

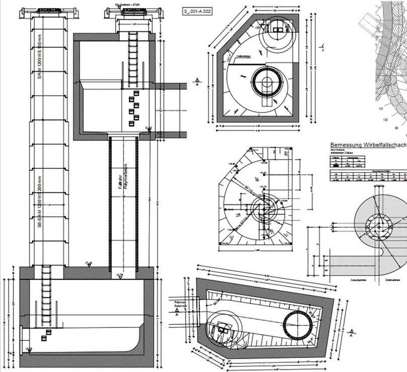
Neben den Stahlbeton-Vortriebsrohren lieferte Berding Beton-Bauwerke, Rahmen, Standardschächte, Standardaufbauteile, Absenkschächte und einen Wirbelfallschacht, die maßgeschneidert gemäß den Anforderungen der Emschergenossenschaft produziert wurden. Für den als Ortbeton ausgeschriebenen Wirbelfallschacht konnte beispielsweise durch die von Berding Beton empfohlene und umgesetzte Fertigteilbauweise eine Größenoptimierung erreicht werden. Dank der im Werk vorgefertigten Elemente konnte die Bauzeit erheblich verkürzt und Kosten konnten gespart werden.

Der Wirbelfallschacht dient der Abwasserkontrolle. Er sorgt für eine ruhige Abflussgeschwindigkeit und wandelt die Energie um, wodurch Bauwerke geschützt und durch einen geordneten Luftstrom die Geräuschentwicklung reduziert wird. Denn bei der Entwässerung wird das Abwasser über das obere sogenannte Schneckenbauwerk in eine Drall- bzw. Spiralbewegung gebracht und dadurch kontrolliert. Auf diese Weise wird es mit geringer Energie über einen großen Höhenunterschied abgeleitet. Durch die spiralförmige Einleitung entsteht ein zentrifugaler, wirbelnder Abstieg entlang der Fallrohre. Diese Wirbelbewegung bremst das Wasser ab und wandelt die potenzielle Energie in einen geordneten Luftstrom im Zentrum des Schachts um, wodurch Lärm und Erosion an den Wänden reduziert werden.

Die Bauzeit für diesen Teilabschnitt dauerte knapp zwei Jahre. Durch die intensive Zusammenarbeit zwischen Bauherrn, Planer, Bauunternehmung und Rohrhersteller bereits im Vorfeld der Rohrproduktion und -auslieferung konnte eine sichere und störungsfreie Belieferung der Baumaßnahme mit qualitativ hochwertigen Rohren gewährleistet werden. Somit waren am Ende alle Beteiligten mit dem Ergebnis sehr zufrieden.
Nach der Fertigstellung dieser Arbeiten konnte die Renaturierung der Flusslandschaften weiter vorangetrieben werden. Die naturnahe Gestaltung und ökologische Aufwertung erschließt Flora und Fauna neue Lebensräume. Aber auch für den Menschen ergeben sich neue Naherholungs- und Freizeitangebote. So wurden beispielsweise entlang der Flussufer neue Fußgänger- und Radwege angelegt. Zusammenfassend lässt sich feststellen, dass der Umbau des Berne-Systems als Teil des Generationenprojekts Emscher-Umbau ein wichtiger Baustein zur nachhaltigen Verbesserung der Lebens- und Freizeitqualität im Ruhrgebiet ist.
Quelle: Berding Beton
Neueste Beiträge:
Meistgelesene Artikel
Jetzt Ausschreibungen finden
Wählen Sie eine Leistungsart, die Sie interessiert.


Bau


Dienstleistung


Lieferung
Verwandte Bau-Stichworte:
Top Bau-Stichworte:
Aktuelle Termine für unterirdische Infrastruktur
Jetzt zum Newsletter anmelden:
Leitungsbau, Kanalsanierung, Abwasser – erfahren Sie das wichtigste rund ums Thema unterirdische Infrastruktur.





