Hermann-Hesse-Bahn mit neuer Entwässerung wieder auf den Schienen
1983 rollte der letzte Personenzug der Württembergischen Schwarzwaldbahn über die Schienen zwischen Calw und Weil der Stadt. Seit über 10 Jahren plant ein Zweckverband nun die Reaktivierung der Hermann-Hesse-Bahn (HHB) und zweier S-Bahnlinien, um den Nordschwarzwald wieder besser an die Region Stuttgart anzubinden. Durch die Realisierung des auf einem nachhaltigen Verkehrskonzept basierenden Jahrhundertprojekts erwarten Planer zahlreiche Vorteile für die gesamte Region.


Schmies.eu Vakuumsaugfässer im Anhängerformat
Vakuumsaugfässer von Schmies.eu: robust, flexibel und - auf Wunsch - auch in kippbarer Ausführung. Die clevere Alternative zum Großfahrzeug.
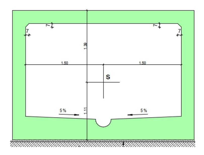
Bereits 2017 begannen umfangreiche Baumaßnahmen zur Reaktivierung der Strecke. Neben Schienen, Schwellen und Schotter wurden Stützmauern, Brücken, Durchlässe und Tunnel erneuert. Auch Bahnübergänge und Signalanlagen wurden auf den technisch aktuellen Stand gebracht. Aufgrund der topographischen Lage musste an vielen Stellen auch die Entwässerung neu geregelt werden. Einen 300 Meter langen Stauraumkanal samt aller Rohre, Schächte und Sonderbauwerke aus Stahlbeton entwickelte, fertigte und lieferte das Unternehmen Hans Rinninger u. Sohn GmbH u. Co. KG aus Kißlegg im Allgäu.


Kaskadenartige Rückhalteräume

Problemlose Montage
Ab dem Fahrplanwechsel Ende 2025 soll der Regelbetrieb der Hermann-Hesse-Bahn wieder aufgenommen werden. Die Voraussetzungen, dass die Entwässerung der anliegenden Straßen, insbesondere bei Starkregenereignissen gut funktioniert, wurden mit dieser Maßnahme schon einmal getroffen.

Lesen Sie auch:
Quelle: Hans Rinninger u. Sohn GmbH u. Co. KG
Weiterlesen:
Neueste Beiträge:
Meistgelesene Artikel
Jetzt Ausschreibungen finden
Wählen Sie eine Leistungsart, die Sie interessiert.


Bau


Dienstleistung


Lieferung
Verwandte Bau-Stichworte:
Top Bau-Stichworte:
Aktuelle Termine für unterirdische Infrastruktur
Jetzt zum Newsletter anmelden:
Leitungsbau, Kanalsanierung, Abwasser – erfahren Sie das wichtigste rund ums Thema unterirdische Infrastruktur.








