Landschaftsarchitekten-Team als Digital-Nomaden unterwegs
Für die Landschaftsarchitekten Selena Zeller und Marc Stoesser ist die Digitalisierung schon lange kein Fremdwort: Bereits seit 2014 erledigen die beiden ihre Planungsarbeiten in ihrem Bus. Ausgerüstet sind sie mit leistungsfähiger Hardware, Grafikprogramm, MS-Office-Paket, CAD-Software und einem AVA- und Baukostenmanagementsystem der G&W Software AG.


Villa Morcote setzt auf WPC-Dielen von NaturinForm
Der Patio der historischen Villa am Luganer See wurde mit Dielen aus WPC „Die Naturlinie“ in Eichenbraun neugestaltet.
Gut geplante Ausrüstung
Damit die Verbindung klappt, nutzt SZplan Dropbox als zentralen Speicher und einen LTE-Tarif mit unbegrenztem Datenverkehr in der ganzen EU von der Telekom. Dank der leistungsstarken Antennen auf dem Dach, können sie auch in ungünstigen Lagen den Empfang deutlich verbessern. Strom produziert das Team über Solarmodule auf dem Dach und beim Fahren über die Lichtmaschine. Alle Programme laufen problemlos auf den Notebooks und bei Baustellenbegehungen oder Baumbestandsaufnahmen kommt das Tablet häufig zum Einsatz. In München hat SZplan ein virtuelles Büro gemietet, an das auch die Post geschickt wird, die sie jederzeit abholen oder sich nachschicken lassen können.
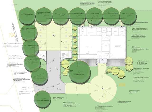
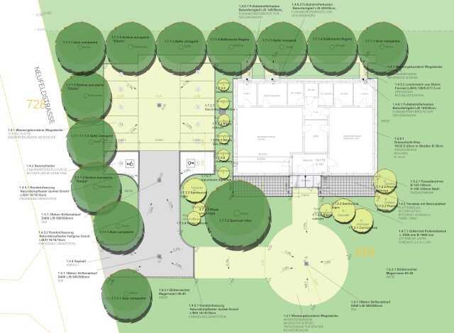
Schwerpunktmäßig sind die Landschaftsarchitekten in der Freiraumplanung unterwegs. Für die öffentliche Hand und Wohnungsbaugenossenschaften planen sie komplette Freianlagen sowie Grün- und Verkehrsflächen um bestehende oder neu geplante Hochbauten. Auch die Planung von Wohnmobilstellplätzen sowie Aufnahmen des Baumbestandes gehören zum Portfolio. Die Entwürfe erstellt Selena Zeller mit Vectorworks, während Marc Stoesser für den administrativen Bereich und für das Kostenmanagement der Projekte zuständig ist. Hier kommt California.pro ins Spiel.

Kostenschätzung schnell und einfach
Zwecks Ausschreibung übermittelt SZplan den öffentlichen Auftraggebern die Leistungsverzeichnisse als GAEB-Datei sowie die Pläne und die relevanten Formulare als PDF-Datei, damit diese die Daten auf der Vergabeplattform einstellen können. Auf Wunsch unterstützt SZplan den Auftraggeber bei der kaufmännischen und technischen Prüfung der Angebote. Für einen großen Teil der Auftraggeber führt Marc Stoesser die Ausschreibungen selber durch und beauftragt nach der Prüfung das oder die ausführenden Unternehmen. Während der Ausführungsphase erhält Stoesser die Abschlagsrechnungen mit dem Aufmaß des Auftragnehmers. Die geprüften Mengen gibt er in California.pro zwecks Rechnungsprüfung und Zahlungsfreigabe ein und erhält somit eine lückenlose Dokumentation der erbrachten Leistungen zur jeweiligen Abrechnung.

Ergeben sich Änderungen während des Bauverlaufes, weil zum Beispiel ein im Boden verstecktes Betonfundament entfernt werden muss, prüft Stoesser das vom ausführenden Unternehmen eingereichte Angebot und erstellt mit California.pro den Nachtrag. Alle Änderungen werden mit dem Programm revisionssicher dokumentiert und sind sowohl für den Landschaftsarchitekten als auch den Auftraggeber nachvollziehbar. Auch speichert Stoesser während des Projektverlaufes die einzelnen Kostenstadien. Somit ist eine lückenlose, transparente Historie der Stadienentwicklung vom Planungs-LV und der Kostenberechnung über den Kostenanschlag, den Hauptauftrag und die Nachtragsstadien bis zur Kostenfeststellung gegeben. Darüber hinaus hält der Landschaftsarchitekt den Auftraggeber mittels der während des Baufortschritts durchgeführten Soll-/Ist-Vergleiche immer auf dem aktuellen Stand.

Durchgängigkeit wichtig
Informationen sind sofort verfügbar
Mit ihrem rollenden Büro können die Landschaftsarchitekten immer dort arbeiten, wo es schön ist und haben dabei viel Abwechslung, da sie selten lange an einem Ort stehen. Obwohl sie viel per Telefon und E-Mail kommunizieren, sind persönliche Besprechungen oder die Klärung örtlicher Besonderheiten sowie die Bauleitung vor Ort notwendig. Hierbei ist vorteilhaft, dass sie immer auf alle Informationen sofort zugreifen können. „Wir können dem Auftraggeber die einzelnen Kostenstadien noch einmal präsentieren oder dem GaLaBauer schnell noch mal die Pläne auf dem Tablet zeigen“, erklärt Marc Stoesser.
Gedeiht die grüne Branche?
Aktuelle Nachrichten zu den Entwicklungen im GaLa-Bau erfahren Sie in unserem Newsletter.
Hier abonnieren!


Lesen Sie auch
: Künstliche Intelligenz: Arbeitserleichterung und EffizienzGartengestaltung mit Online-Konfigurator
Neueste Beiträge:
Meistgelesene Artikel
Jetzt Ausschreibungen finden
Wählen Sie eine Leistungsart, die Sie interessiert.


Bau


Dienstleistung


Lieferung
Top Bau-Stichworte:
Jetzt zum Newsletter anmelden:
Werden Sie Experte im Garten- und Landschaftsbau. Plus: Kommunaltechnik.





